The River House

2019

ARCHITECT OF RECORD: Studio 7 - New Zealand

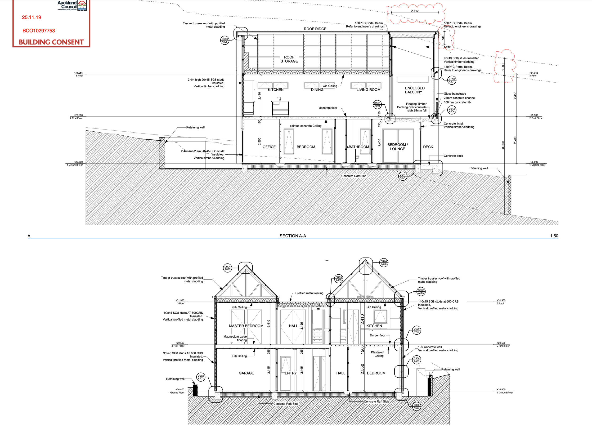
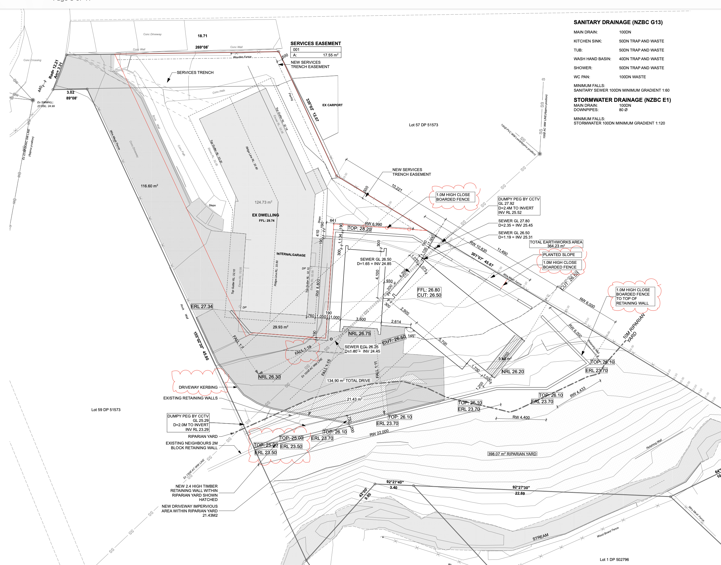
PROJECT DESCRIPTION: Family occupied single dwelling. Three bedroom open plan living and a semi enclosed deck overlooking the riparian yard. The materials include vertical timber and metal cladding. Two story concrete structure.

ROLE: Ideation and schematic design. Design development. Construction documents. Construction Administration. Client coordination. Resource and building consent. Project management.

Next
Next

Pacifica